Descripción
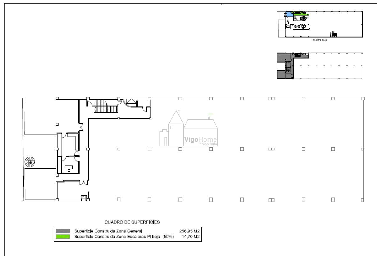
¡Oportunidad única en la Avenida de Madrid! Se vende amplia NAVE INDUSTRIAL de 1.500 m² construidos, ubicada a pocos minutos del centro de la ciudad y con excelente acceso a las principales vías de comunicación.
Dispone de subaltura destinada a oficinas, zona de entrada y salida de camiones para carga y descarga, además de una zona de aparcamiento al aire libre situada delante de la nave, que aporta gran comodidad para empleados y clientes.
Como valor añadido, existe la posibilidad de adquirir las oficinas comerciales de 500 m² situadas sobre la propia nave, ampliando así el espacio y ofreciendo mayor versatilidad para combinar área de trabajo administrativo con superficie logística e industrial.
Una propiedad estratégica y polivalente, perfecta para emprendedores e inversores que buscan potenciar su negocio en una ubicación privilegiada de Vigo.
CONTÁCTANOS YA Para más información, visita y reservas en VigoHome
Consúltanos sin compromiso y le ayudaremos a encontrar el local que mejor se adapte a sus necesidades.
Puedes ver el resto de nuestras propiedades disponibles en nuestra página web, ponte en contacto con nosotros y estaremos encantados en orientarte en tu compra. Te acompañaremos y asesoraremos en el proceso de la compraventa hasta la entrega de llaves.
Asesórate con nosotros. Ofrecemos estudio financiero gratis donde podrás conseguir una financiación a tu medida (sujeta a estudio)
Contáctanos ya!! A través de este formulario, llamándonos o a través de nuestra web www.vigohome.com
La información contenida en este anuncio es meramente informativa y no tiene carácter contractual.